Friday, November 5, 2021

Floor Mounted Water Closet Installation - Top Quality Floor Mounted Installation Type Ceramic Material One Piece Sipnonic Toilet For Water Closet / Before you begin learning how to install a toilet, choose your new toilet, and if you aren't replacing an e

Floor Mounted Water Closet Installation - Top Quality Floor Mounted Installation Type Ceramic Material One Piece Sipnonic Toilet For Water Closet / Before you begin learning how to install a toilet, choose your new toilet, and if you aren't replacing an existing toilet, make sure you have plumbing ready for the new installation.. All you need are a few hours, a helper and the right tools and toilet parts for the job. 311 adjustable horizontal water closet carrier installation 1. 10, 12, or 14 in. Replacing and installing a new toilet isn't as hard as it may sound. Inventory your shipment & remove old closet material 4 2.

Refer to the following information for weight/load bearing limits for kohler toilets, toilet seats and lavatories. The following products can be purchased on amazon, by clicking on the link:oatey flange: Four basic installation scenarios 2 b. Remove old wax seal from floor and. Note that there are no standards that specify a minimum load bearing capability requirement for floor mount water closets.

Sloan St 2309 A Vitreous Junior Water Closet
Sloan St 2309 A Vitreous Junior Water Closet from cdn11.bigcommerce.com
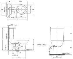
To obtain spacing, place the proper lengths of pipe between adjoining fittings. (dependent on tank used) fully glazed 2 in. Lay out all closet carrier fittings on floor. • lay water closet down on padded surface to help protect the vitreous. The grab bar must extend at least 12 inches (305 mm) from the centerline of the water closet toward the side wall and at least 24 inches (610 mm) from the centerline of the water closet toward the open side. The toilet flange, also known as a closet flange, is the part of the toilet that secures the unit to the floor and connects to the drain pipe.usually made of pvc, rubber or metal, this piece is circular in shape and usually secured in place with a few bolts. The final measurement is… #4: With flush rates starting at 1.1 gallons per flush, you can minimize environmental impact while saving money.

The toilet flange, also known as a closet flange, is the part of the toilet that secures the unit to the floor and connects to the drain pipe.usually made of pvc, rubber or metal, this piece is circular in shape and usually secured in place with a few bolts.

S4007 horz sgl left hand carrier fitting s4009 horz double Constructed from grade a vitreous china. Before you begin learning how to install a toilet, choose your new toilet, and if you aren't replacing an existing toilet, make sure you have plumbing ready for the new installation. To obtain spacing, place the proper lengths of pipe between adjoining fittings. Make sure all faces of fittings are parallel. Can escape through the closet flange if new water closet is not installed quickly. Four basic installation scenarios 2 b. It takes up more space as compared to wall mounted wc. This is a larger job overall and requires more complicated plumbing. Where to put the cold water supply line. Luckily, people shut the door when using a toilet. Industry standard water closet carriers typically ship in two components. The final measurement is… #4:

10, 12, or 14 in. The final measurement is… #4: Luckily, people shut the door when using a toilet. Industry standard water closet carriers typically ship in two components. Remove old wax seal from floor and.

Hindware Water Closets Collection Hindware Homes Blog
Hindware Water Closets Collection Hindware Homes Blog from www.hindwarehomes.com
Luckily, people shut the door when using a toilet. Four basic installation scenarios 2 b. 500 lb., 750 lb., and floor mounted (dependent on tank used) fully glazed 2 in. The carrier faceplate assembly anchors to the floor and supports the bowl. The floor mounted wc makes your toilet congested and cramped up. Refer to the following information for weight/load bearing limits for kohler toilets, toilet seats and lavatories. 10, 12, or 14 in.

If your flange is loose or deteriorating, it can leak and erode the surrounding flooring, causing significant damage over time.

• lay water closet down on padded surface to help protect the vitreous. 500 lb., 750 lb., and floor mounted 311 adjustable horizontal water closet carrier installation 1. (dependent on tank used) fully glazed 2 in. Required & recommended tools 3 c. If your flange is loose or deteriorating, it can leak and erode the surrounding flooring, causing significant damage over time. For over 140 years, american standard has set the tone for commercial toilets in the industry. Four basic installation scenarios 2 b. It takes up more space as compared to wall mounted wc. Luckily, people shut the door when using a toilet. Make sure all faces of fittings are parallel. To obtain spacing, place the proper lengths of pipe between adjoining fittings. Before you begin learning how to install a toilet, choose your new toilet, and if you aren't replacing an existing toilet, make sure you have plumbing ready for the new installation.

Place a large rag in the closet flange. The toilet flange, also known as a closet flange, is the part of the toilet that secures the unit to the floor and connects to the drain pipe.usually made of pvc, rubber or metal, this piece is circular in shape and usually secured in place with a few bolts. Dear viewers,in this video,i have explained about the pros & cons of wall mounted water closet and floor mounted water closet in detail.don't forget to subsc. The grab bar must extend at least 12 inches (305 mm) from the centerline of the water closet toward the side wall and at least 24 inches (610 mm) from the centerline of the water closet toward the open side. 500 lb., 750 lb., and floor mounted

Laufen H8239530002511 Pro 28 1 8 Dual Flush Floor Mount One Piece Elongated Water Closet Bowl In White
Laufen H8239530002511 Pro 28 1 8 Dual Flush Floor Mount One Piece Elongated Water Closet Bowl In White from media.decorplanet.com
For over 140 years, american standard has set the tone for commercial toilets in the industry. It takes up more space as compared to wall mounted wc. If your flange is loose or deteriorating, it can leak and erode the surrounding flooring, causing significant damage over time. (dependent on tank used) fully glazed 2 in. 10, 12, or 14 in. Constructed from grade a vitreous china. The toilet flange, also known as a closet flange, is the part of the toilet that secures the unit to the floor and connects to the drain pipe.usually made of pvc, rubber or metal, this piece is circular in shape and usually secured in place with a few bolts. Remove old wax seal from floor and.

Inventory your shipment & remove old closet material 4 2.

Proflo toilets carry a limited lifetime warranty on the fixture and 5 years on the parts. Dear viewers,in this video,i have explained about the pros & cons of wall mounted water closet and floor mounted water closet in detail.don't forget to subsc. The floor mounted wc makes your toilet congested and cramped up. The grab bar must extend at least 12 inches (305 mm) from the centerline of the water closet toward the side wall and at least 24 inches (610 mm) from the centerline of the water closet toward the open side. The following products can be purchased on amazon, by clicking on the link:oatey flange: Refer to the following information for weight/load bearing limits for kohler toilets, toilet seats and lavatories. If your flange is loose or deteriorating, it can leak and erode the surrounding flooring, causing significant damage over time. Remove old wax seal from floor and. Required & recommended tools 3 c. Industry standard water closet carriers typically ship in two components. Watch the video above to learn how to put in a. This is a larger job overall and requires more complicated plumbing. 311 adjustable horizontal water closet carrier installation 1.

No comments:

Post a Comment